Sanierung der Peterskriche und Neubau des Gemeinderaums
Diese Seite wird gerade aktualisiert. Bitte noch um etwas Geduld.
Bau- und Renovierungsarbeiten am Gemeindesaal (Sakristei) – Wie ist der Stand?
(Stand 10.04.2025) Die letzte große Renovierung der Gaiberger Peterskirche war 1996-1999. Seither scheint es, dass der Zahn der Zeit immer mehr an dem Gebäude nagt. Die schwarzen Schlieren am Kirchturm waren das äußere Zeichen. Dank der Spendenbereitschaft aus der Gemeinde wurde das vom Kirchenbauverein angestoßene Crowdfundingprojekt zum Erfolg. Nun erstrahlt der Kirchturm in neuem Glanz - ein würdiges Wahrzeichen unseres Ortes!
Auch das Langhaus wurde auf Initiative des Ev. Kirchenbauvereins im Januar 2025 renoviert und auch durch den Kirchenbauverein finanziert. Details hierzu finden Sie hier.
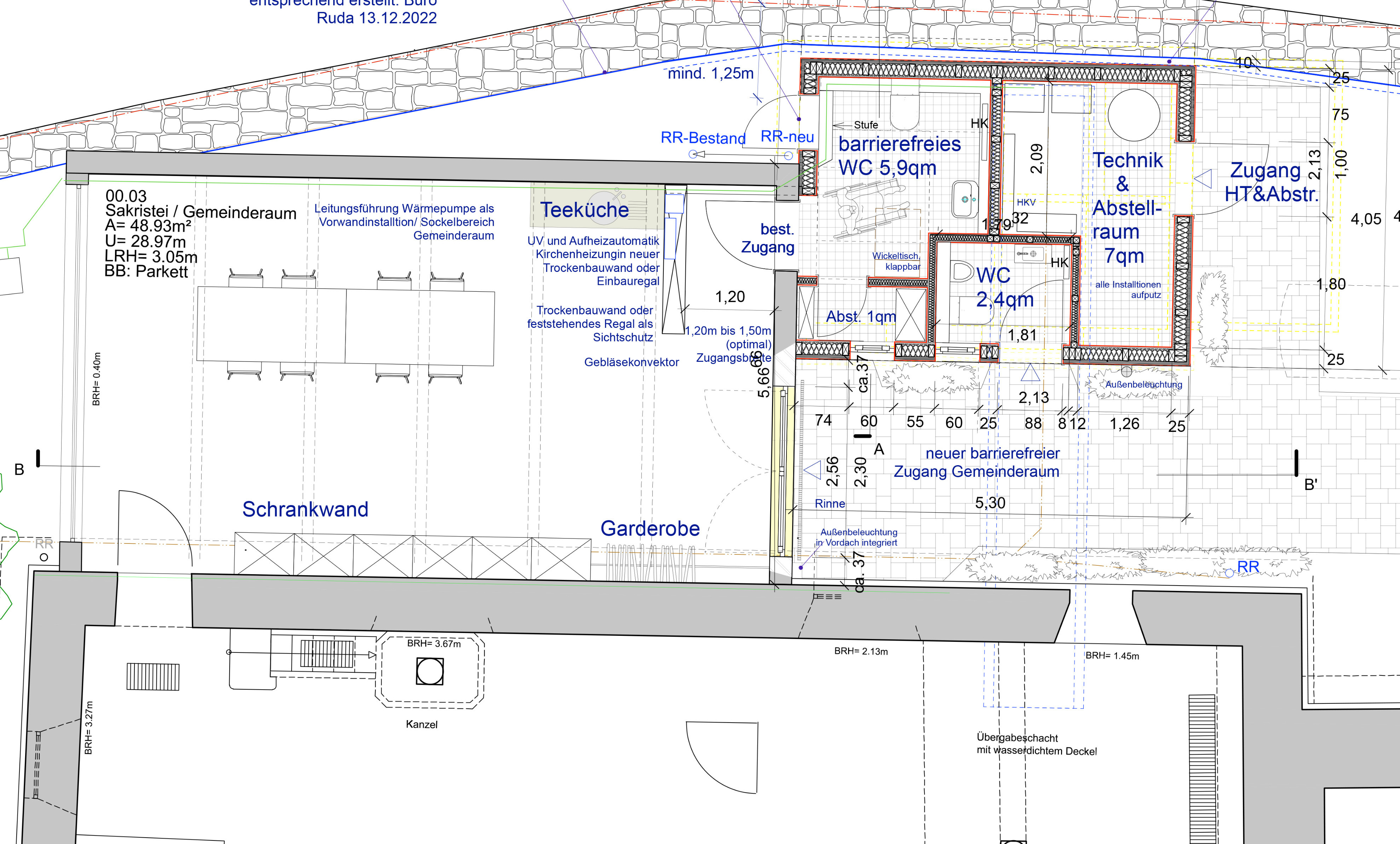
Desolat ist der jedoch noch Zustand des Nebengebäudes – manchmal als Sakristei bezeichnet und vermutlich unter der Bezeichnung vor vielen Jahren genehmigt und gebaut und immer wieder erweitert. Leider erfolgte das mit viel Engagement, aber nicht immer mit dem notwendigen Sachverstand. Die Folge: Das Flachdach des Anbaus über der ehemaligen Küche ist vermutlich undicht, die Außenisolation fehlerhaft. So kam es schon vor Jahren zu einem kontinuierlichen Feuchteeinbruch mit Schimmelbefall. Die kaum genutzten Küchenmöbel mussten auf den Sperrmüll, und die ehemalige Küche ist inzwischen kahl, feucht und unbenutzbar.
Der eigentliche Gemeinderaum ist nicht nur ungemütlich, sondern ebenfalls muffig und düster – aber wenigstens von der Bausubstanz wohl in Ordnung.
Nach jahrelangen Verzögerungen auch durch das Baumoratorium des Oberkirchenrates (EOK) entwickelte das Architekturbüro Kristina Butschbacher eine neue Konzeption, die sich streng an der aktuellen Zuschusssituation und den vorhandenen Finanzmitteln orientiert.
Folgende Eckpunkte wurden in Zusammenarbeit aus Architekturbüro, Kirchengemeinderat und Kirchenbauausschuss fomuliert:
Der Gemeinderaum wird saniert, verbleibt aber in seinen Außenmauern auf der bestehenden Grundplatte.
Der Holzschuppen wird ersatzlos abgerissen.
Ein neuer Anbau wird auf der Fläche der bisherigen Nebenräume in Holzständerbauweise errichtet.
Dieser Anbau enthält zwei neue Toiletten, eine davon barrierefrei, einen Technik- und Lagerraum sowie einen weiteren kleinen Abstellraum.
Die Heizung wird auf Basis der Wärmepumpentechnologie (Luft-Wasser) erneuert.
Das Dach wird abgedichtet.
Der Gemeinderaum erhält einen barrierefreien neuen Zugang zwischen Kirche und Gemeinderaum-Komplex.
Eine kleine Teeküchenzeile wird in den Gemeinderaum integriert.
Nach weiteren Verzögerungen, die nicht die Kirchengemeinde, sondern der Evangelische Oberkirchenrat in Karlsruhe (EOK) zu verantworten hatte, konnte endlich am 10.04.2025 beim Landratsamt des Rhein-Neckar-Kreises der Bauantrag für die geplante Sanierung gestellt werden.
Damit steht einer Ausschreibung und einem Beginn der Umbaumaßnahmen noch im Jahr 2025 nichts mehr im Wege.
(Update 10.07.2025) Nachdem der Gemeinderat in seiner Sitzung vom 2. Juli 2025 den Bauantrag genehmigt hat, kam am 8. Juli 2025 auch die Genehmigung vom Evangelischen Oberkirchenrat (EOK) in Karlsruhe. Damit steht der Beginn der Baumaßnahmen unmittelbar bevor.
boe



(Update 13.10.2025) Die Bauarbeiten am Gemeinderaum laufen seit Mitte September. Das langjährige Warten hat ein Ende. Der Schuppen wurde abgerissen, der marode Wandschrank im Gemeinderaum entfernt, und die veraltete Heizung ist verschwunden.
Nachfolgend ein paar Fotoimpressionen, die den Baufortschritt dokumentieren.
boe
Die Fotos lassen sich durch Anklicken vergrößern.